L'AVVISO

Pronto il rilancio del mercato di via XX Settembre a Recco: “L’affitto dei chioschi costerà di meno”

La Giunta Gandolfo adegua le tariffe ai valori del mercato immobiliare per assegnare le strutture numero 1 e 4, rimaste vuote. La riduzione sarà applicata anche agli altri operatori

Pronto il rilancio del mercato di via XX Settembre a Recco: “L’affitto dei chioschi costerà di meno”

Dopo una serie di tentativi andati a vuoto e la recente rinuncia di uno storico operatore, la Giunta di Recco ha deciso di cambiare strategia per il mercato comunale di via XX Settembre, decidendo di ridurre le tariffe dei chioschi, allineandole a quelle del mercato immobiliare attuale.

“Abbiamo deciso di fissare il canone per tutti chioschi adeguandolo ai valori fissati dall’Osservatorio del Mercato Immobiliare (OMI). Per il primo semestre 2025, il valore per i locali commerciali in via XX Settembre è fissato a 24,90 euro al metro quadrato al mese. E questo sarà anche il nuovo prezzo a base d’asta che sarà fissato per i prossimi bandi. Con questa scelta vogliamo evitare che i chioschi restino vuoti, situazione che comporterebbe non solo una perdita di entrate per il Comune, ma anche un progressivo degrado della struttura”, osservano il sindaco Caro Gandolfo e l’assessore al commercio Giuseppe Rotunno.

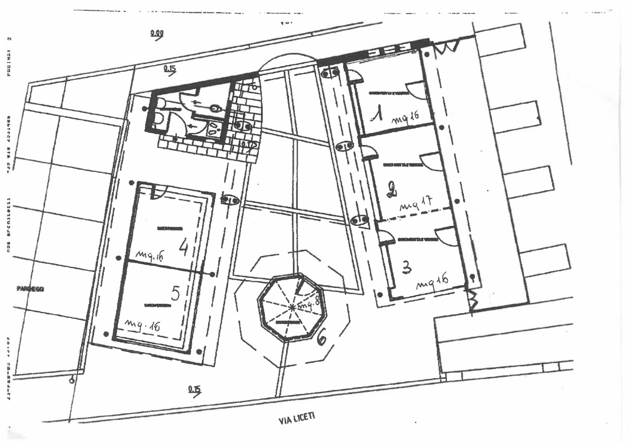
Sei chioschi nel mercato comunale

Il complesso del mercato comunale è costituito da sei chioschi. La criticità principale ha riguardato finora il chiosco n. 4, messo a bando due volte – la prima volta limitata alla vendita di salumi e formaggi, la seconda aperta a qualsiasi genere merceologico – nessuno si è fatto avanti per gestirlo. Inoltre, nel novembre 2025, si è liberato anche il chiosco n. 1 (storicamente adibito a frutta e verdura) a seguito della rinuncia del locatario.

Dall’analisi tecnica degli uffici comunali è emerso che i canoni richiesti fino a oggi erano calcolati basandosi sulla rata del mutuo che il Comune aveva acceso anni fa per costruire il mercato, aggiornata annualmente con l’inflazione Istat. Una metodologia ormai superata, dato che quel mutuo è stato estinto, che ha prodotto tariffe non più sostenibili dopo la crisi del 2008 e l’emergenza Covid. I vecchi affitti risultavano superiori di oltre il 40% rispetto ai valori reali della zona. Una discrepanza che ha reso impossibile trovare nuovi gestori.
La delibera prevede, inoltre, il ricalcolo del canone anche per i concessionari dei chioschi n. 2, 3, 5 e 6, già regolarmente assegnati. Una misura pensata per non penalizzare chi ha resistito finora e per uniformare il trattamento economico di tutti gli operatori del mercato.

Infine la Giunta ha dato mandato agli uffici di indire nuovi bandi per assegnare i chioschi n. 1 e n. 4. Per incentivare la partecipazione, non saranno posti vincoli merceologici ma le strutture potranno vendere prodotti sia alimentari sia non alimentari.