La notizia

Recco, approvata la variante per l’alloggio PNRR destinato all’autonomia delle persone con disabilità

Per rispondere al meglio al desiderio di una vita indipendente

Recco, approvata la variante per l’alloggio PNRR destinato all’autonomia delle persone con disabilità

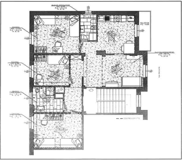
Per rispondere al meglio al desiderio di una vita indipendente, la Giunta di Recco ha approvato la variante al progetto progetto di ristrutturazione all’appartamento di proprietà comunale di in via Trieste, finanziato nell’ambito del PNRR dedicato ai “percorsi di autonomia per persone con disabilità.

Recco

La dichiarazione del sindaco Carlo Gandolfo e dell’assessore ai servizi sociali Davide Manerba

“L’intervento mantiene invariato il tetto di spesa complessivo di 300mila euro mentre la variante comporta l’assegnazione di ulteriori lavori all’impresa incaricata per importo di oltre 35mila euro, coperto dalla voce “imprevisti”.
“Abbiamo il dovere di investire in progetti che migliorano la qualità della vita, soprattutto per le persone più fragili. La scelta di destinare risorse del PNRR a percorsi di autonomia è una testimonianza dell’impegno sociale dell’amministrazione”.

La dichiarazione dell’assessore ai lavori pubblici Sara Rastelli


“La variante nasce dall’esigenza di rendere l’immobile non solo conforme ma anche più funzionale. L’inserimento di soluzioni domotiche pensate per rispondere alle diverse esigenze, e la cura per i dettagli architettonici, dimostrano una visione moderna dell’edilizia pubblica”.


Tra gli interventi previsti: isolamento dell’estradosso del lastrico solare per una maggiore efficienza energetica; installazione di un impianto solare termico con pannelli; rimozione di materiali contenenti amianto; fornitura di arredi.